Saltar la navegación

2ª Fase: Necesidades

¿Que elementos habitacionales debe tener mi vivienda?

Diseñaremos un espacio que al menos contenga...

De las repuestas a las preguntas que no hemos planteado en el apartado anterior podemos tener el  siguiente cuadro de necesidades:

3 Dormitorios, 1 principal con baño y un baño compartido o aseo
1 sala estar
1 cocina (puede estar unida al comedor lo cual incrementa nuestra sensación de espacio)
1 aseo para la zona cocina-comedor
1 patio

Ejemplos de viviendas

Vivienda 1

Vivienda en dos plantas con plaza de garaje

planta baja
Planta Baja
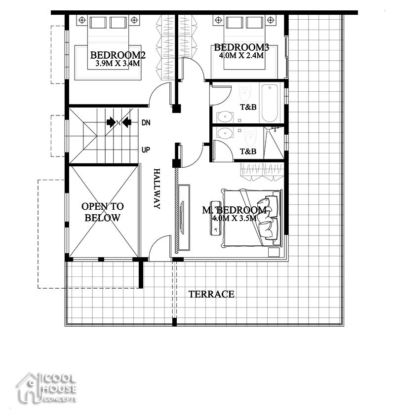
segund aplanta
Segunda planta

Vivienda 2

Vivienda en tres plantas con ático